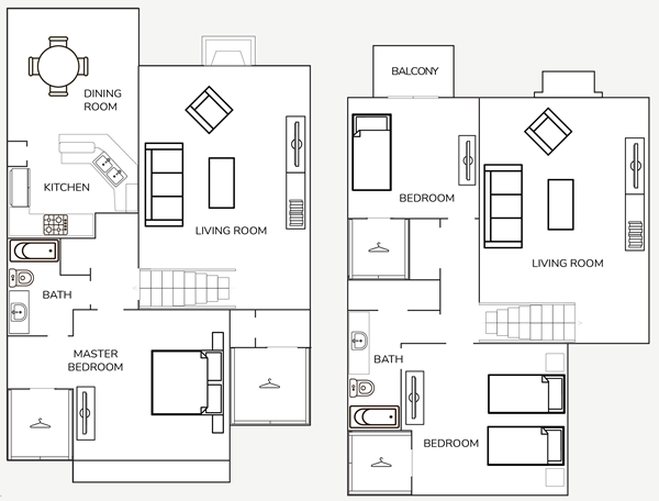
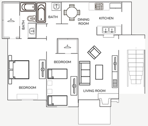
Offering a variety of one, two and three bedroom floor plans. Chimney Square Apartments provides the perfect enviroment to feel right at home.
![]()
Chimney Square promotes equal housing opportunity and choice for all prospective residents regardless of race, color, creed, religion, national origin, disability, or marital or familial status.